La iglesia más extraña y espectacular del mundo está en Tenerife: así es la obra de un arquitecto canario que ha ganado el 'mundial de la arquitectura'
La Iglesia del Santísimo Redentor, situada en Las Chumberas, ha logrado un reconocimiento internacional gracias a su sorprendente estructura, tan singular que muchos no la identificarían como un templo católico

Iglesia Santísimo Redentor Fernando Menis / El Día
La iglesia más singular del mundo se encuentra en Tenerife y, además, ha sido reconocida como una de las mejores a nivel arquitectónico. En Las Chumberas, un barrio al sureste de San Cristóbal de La Laguna, aparece un edificio que desconcierta a cualquiera a primera vista, porque parece de todo menos lo que realmente es, un templo católico. Gracias a él, Tenerife cuenta con una joya artística única en el planeta.

Así es la Iglesia del Santísimo Redentor de Las Chumberas / Estudio de arquitectura de Fernando Menis
La Parroquia del Santísimo Redentor destaca por su forma única y su silueta poco convencional, un diseño que le ha valido reconocimiento internacional en el Festival Mundial de Arquitectura (World Architecture Festival, WAF) y que la diferencia por completo de otras construcciones religiosas de la isla. El arquitecto canario Fernando Menis pudo cumplir con su objetivo de tener "un espacio de encuentro, reflexión y transformación urbana".
La Iglesia del Santísimo Redentor de las Chumberas es única en el mundo
Alejada de las majestuosas basílicas barrocas, sin rastro de las imponentes y afiladas catedrales góticas, y sin elementos en común con las elegantes iglesias neoclásicas, se alza esta singular construcción que, a partes iguales, maravilla y desconcierta a quienes la contemplan.
Creada en estilo brutalista por el arquitecto canario Fernando Menis, la Iglesia del Santísimo Redentor de las Chumberas está creada para ser única en el mundo. Acaba de hacer en 2021 en una plaza del barrio, el complejo cuenta con un centro parroquial inaugurado en 2008 y una zona de oración diferente al resto de iglesias de la isla. La construcción está hecha íntegramente de hormigón y piedra, para darle, según el arquitecto, "una inspiración en la geología volcánica de la isla que lo acoge".
La edificación sale del suelo, de manera que "parece elevarse de unas enormes rocas movedizas".
La construcción usa materiales de "kilómetro cero"
Esta iglesia no destaca solo por su arquitectura, sino que también utiliza hormigón hecho cerca de esta iglesia y piedras extraídas del suelo de la isla. Tras quince años de obras, y varias fases de proyectos, la parroquia del Santísimo Redentor pudo abrirse gracias a la aportación de donativos de vecinos de las Chumberas, promotores privados y la Diócesis de Nivariense.
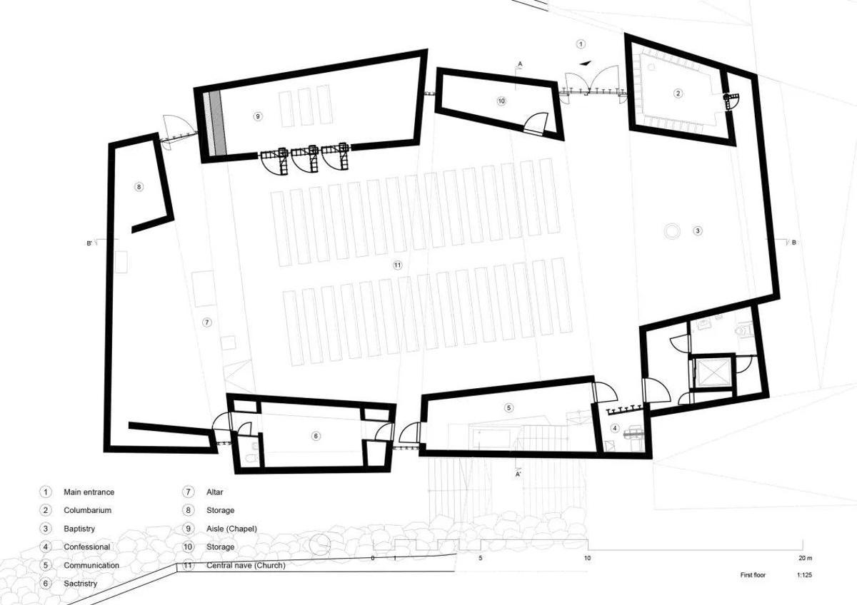
El resultado es un conjunto de cuatro volúmenes de piedra independientes, diseñados con hormigón visto y piedra que evocan rocas volcánicas. Entre ellos se abren estrechas fracturas estructurales protegidas por vidrio y metal, por las que se filtra la luz natural. Esta luz aporta significado al interior: al amanecer, un haz ilumina la cruz detrás del altar; al mediodía baña el baptisterio, y más tarde se proyecta sobre los bancos o el confesionario.

Así incide la luz / Estudio de arquitectura de Fernando Menis
Sus muros de hormigón macizo y su inercia térmica aíslan térmicamente el edificio, mientras su diseño acústico, combinando con el hormigón convencional y piedra porosa volcánica, crea espacios con una notable calidad sonora, ideal para hacer misas, rezar, leer el Evangelio y el canto coral. También cuenta con un columbario donde los vecinos de Las Chumberas pueden depositar las cenizas de los familiares fallecidos.
"La iglesia es un lugar donde no lo había"
Gracias a la colaboración de todas las partes, Fernando Menis consiguió tener este proyecto que no solo es un espacio religioso, sino que funciona como un motor de cambio dentro de un barrio tradicional y de gente humilde.
Bajo el apoyo del Obispado de Tenerife, la iglesia fue pensada como un "lugar donde no lo había", un punto de identidad para una comunidad históricamente fragmentada.
La Iglesia del Santísimo Redentor tiene muchos premios arquitectónicos
Según el jurado del WAF 2025, la iglesia es un ejemplo sobresaliente de arquitectura comunitaria. Ellos destacaron que el complejo "proporciona un espacio vital de reunión para los vecinos" al incluir tanto el templo como un centro social y una plaza pública. La organización valoró su capacidad de actuar como catalizador del cambio en un entorno urbano fragmentado.

Así es el plano de la iglesia del Santísimo Redentor / Estudio de arquitectura de Fernando Menis
Además, los expertos incidieron en la inspiración en el paisaje volcánico, la expresividad de sus formas y la transparencia que crea la luz natural, "generando espacios íntimos y espirituales sin añadir elementos superfluos". Su diseño estructural "masivo pero delicado en las fisuras", junto al uso del hormigón tanto para estructura como para textura y acústica, fue otro de los puntos fuertes señalados por los evaluadores.
Este galardón del WAF se suma a una serie de reconocimientos ya recibidos por la iglesia de Menis:
- Premio Internacional de Arte y Arquitectura Religiosa Faith & Form (Honor Award).
- Premio Internacional Frate Sole de Arquitectura Sacra 2024 (considerado el “Oscar” de la arquitectura religiosa).
- ADF Design Excellence Award 2025 (otorgado por la Fundación Aoyama Design Forum, Japón).
Más allá del valor arquitectónico, la Iglesia del Santísimo Redentor es un testimonio del esfuerzo comunitario. Las donaciones de vecinos, feligreses y empresarios locales ha hecho posible que esta construcción no solo sea un templo, sino un lugar de cohesión social y religioso.
- La Aemet avisa: Tenerife afrontará lluvias intensas a primeras horas y fuertes rachas de viento este lunes
- El local de Tenerife donde el pulpo es el plato estrella: cocina casera y precios económicos
- El cedro Tara permaneció oculto durante tres décadas en el Parque Nacional del Teide
- La expropiación de 8.000 metros cuadrados allana el tercer carril de Guamasa a Los Rodeos
- Santa Cruz de Tenerife, entre las provincias con mayor impacto de la inteligencia artificial en el empleo femenino
- El meteorólogo Rubén Vázquez alerta de la llegada del invierno puro a Tenerife: 'Canarias encara una semana marcada por el viento y un descenso brusco de las temperaturas
- La mejor tarta de queso de Canarias está en Tenerife: así son la tartas elaboradas con quesos canarios
- El rodaje de 'El laberinto de las mariposas', con Can Yaman, llega a su ecuador en Tenerife
